property
お水の賃貸 | 成功者の証、広尾のアドレスが示す、揺るぎないステータス「グランパセオ広尾」。
投稿日:
GRAN PASEO広尾(グランパセオ広尾)
コンシェルジュの一言メッセージ
品格漂う閑静な邸宅地、広尾エリアの高級賃貸マンション。
このエリアでは貴重な敷金なし礼金なし!仲介手数料無料キャンペーン物件です。
恵比寿・渋谷・六本木で働く水商売の方にオススメの高級賃貸情報です。
この物件のオススメポイント
- 白を基調とした清潔感あふれる玄関
- ドレスや衣装を美しく保つ、プロ仕様のWIC。
- 寝室直結WICで叶える、出勤前と帰宅後の完璧な効率。
- 仕事着と私服を完全に分離するセカンドクローゼット
- 扉を開放、広々とした11.8帖の「プライベートスイート」としても利用も
- 心身をリセットする極上のプライベートスパ
オススメポイントを
詳しくご紹介致します。
GRAN PASEO広尾(グランパセオ広尾)
広尾3丁目エリアに2025年2月、渋谷区広尾に完成した、いちご株式会社などが展開する高級賃貸マンションのブランドシリーズマンションです。
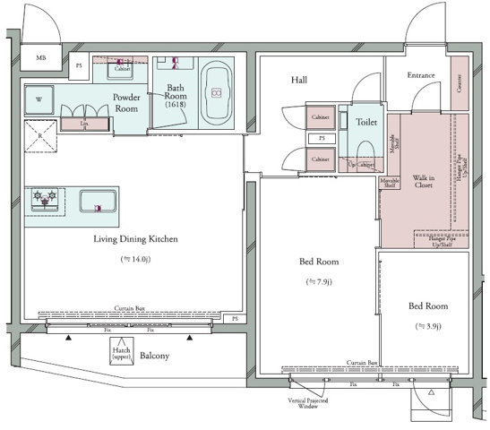
本日ご紹介のお部屋は、地上13階建ての鉄筋コンクリート造、間取りは68.58㎡の2LDKタイプ。
広尾エリアではめったに出ない、敷金なし礼金なし!仲介手数料無料の初期費用が抑えられる物件です。
広尾三丁目はどんな街
広尾三丁目は、渋谷区広尾エリアの中でも、特に落ち着いた品格と高い安全性を誇る、東京を代表する高級住宅街です。
広尾駅周辺の賑やかさから一歩奥まった高台に位置し、大使館や大邸宅、低層の高級マンションが立ち並んでいます。
都心にありながら人通りや車通りが少なく、極めて静かで穏やかな雰囲気です。
治安に関しては、各国大使館が点在しているため警備が行き届いており、渋谷区の中でもダントツで治安が良いエリアとして知られています。
水商売で働く女性の方には、安心して住んで頂けるオススメのエリアです。
広尾の街並みに際立つ、シャープで都会的なフォルムが魅力のレジデンス。
モノトーンを基調としたモダンな外観、ガラスウォールとシックなタイルが織りなす静謐なエントランス。
一歩足を踏み入れた瞬間から、日常を忘れる快適な空間が始まります。




広尾の風格にふさわしい知的なエントランス
ガラスと石材の組み合わせが醸し出す重厚感。
この安全性の高い、オートロックを潜れば、都会の喧騒から完全に切り離されたプライベートな空間が待っています。

上質なタイル床と間接照明が演出する静謐なラウンジ空間
モノトーンを基調とした洗練された内装は、ご友人を招いた際にも誇りを感じていただける、迎賓の空間としての役割も果たします。

エレガントなソファが配された奥のラウンジは、静かに一息つくためのプライベートなエリアで、都会の喧騒を忘れる安息の空間です。

採光窓とダウンライトが、心地よい明るさをもたらすホール。
一日の始まりと終わりを、穏やかな気持ちで迎えられます。


空間に溶け込むシックなオールブラックのデザイン。
居住者以外は入れない厳重なセキュリティの内側に設置。
プライバシーを守りながら、いつでも安全に郵便物や荷物を受け取れます。

落ち着いた色調で統一された、エレベーターホール。
待機時のプライバシーにも配慮した、ゆとりのある広さを確保したエレベーターホール。
余計な装飾のないシンプルで堅牢なエレベーターホールが、あなたの安全な帰路を約束します。

絨毯敷きの内廊下で、最高級ホテルの静寂と安らぎ空間。
お仕事終わりが深夜になりがちな、キャバ嬢さんも安心。
絨毯敷きの内廊下が足音を完全に吸い込み、人目を気にせず、完全なプライベート空間へと導きます。

白を基調とした清潔感あふれる玄関
ゆったりとした広さを確保した玄関。
忙しい出勤前の準備もストレスフリーで、毎日気持ちよく出入りできる開放的な玄関です。
正面の扉を開けると…

ドレスや衣装を美しく保つ、プロ仕様のWIC。
大容量フレキシブル収納、衣服を掛けるハンガーパイプと、高さが自在に変えられる可動棚が設置され、シーズンオフの洋服や小物類も、全て収納できます。
空間全体に施されたタイル敷きの床は、掃除が容易で湿気にも強く、大切な衣類を清潔に保ちます。
居住空間を圧迫しないゆとりのある収納スペースで、衣類の整理だけでなく、着替えの際にも余裕をもって使える、贅沢な設計です。



タイルの清潔感からフローリングの温もりへ
玄関から奥が見通せないため、安全性が向上。
安心感と居室への期待感を高める、贅沢なアプローチです。

生活感を排除、吊戸棚に全てを隠し、常に完璧な空間を
独立した手洗いカウンターが設置され、清潔感とホテルのような上質さを保ち、来客時にも誇れる空間です。
タンクレスのスタイリッシュなトイレで、掃除がしやすく、常にクリーンな状態を維持できます。
トイレ上部には、トイレットペーパーや掃除用品をすっきり隠せる、吊り戸棚収納が設置され生活感を排除できます。
トイレ横のカウンターにはアロマやお花を飾り、お客様を招く際にも細やかな心遣いを演出できます。
落ち着いた色調とデザイン性の高い設備、細部にまで妥協しない姿勢が、広尾の暮らしの質を物語ります。



女性には嬉しい、のアイテムを美しく管理
この収納は、ドレスや衣装や小物が多い水商売の方のために設計されています。
多段に配置された可動式の棚は、ブーツからヒール、バッグに至るまで、アイテムのサイズに合わせて自由自在に調整可能です。

白く清潔感あふれる空間は、大切な衣装をホコリや湿気から守り、整理整頓が容易な設計により、探す手間を最小限に。
忙しいあなたの生活にゆとりと効率をもたらします。


扉の先は安らぎの聖域、静寂に包まれた寝室へ。
廊下からの視線を完全に遮断、安らぎとプライバシーが守られた、上質な眠りのための空間です。

広尾で叶える最高の「眠り」と「リセット」
明るいフローリングと柔らかな採光が、仕事の緊張を解きほぐします。
約7.9帖の広さは、ベッドを置いてもゆとりがあり、心身をしっかり休めるための静かで心地よい環境を提供します。




寝室直結WICで叶える、出勤前と帰宅後の完璧な効率。
この間取りの最大の魅力は、寝室からWICへ直接アクセスできる点です。
深夜の帰宅時、重い荷物や衣装を抱えたまま、廊下を経由する無駄な動線はありません。
寝室でリラックスした後、すぐにWICで衣装を整頓でき、「着替え→休憩→収納」の全てが最短距離で完了します。
水商売で働く方の時間と体力を大切にする方の為の設計です。

パフォーマンスを最大化する、3.9帖の専用基地。
衣装の最終チェック、スケジュール確認、など、メインの居室を完璧な休息の場として保ちながら、仕事に必要な全ての準備をこの専用スペースで完結できます。

仕事着と私服を完全に分離するセカンドクローゼット
多種多様な衣装や仕事用の小物を集中管理するためのセカンドクローゼット兼ドレッシングルームとして利用もおすすめです。
ここに鏡やハンガーラックを追加すれば、メインの寝室を汚さずに、静かで集中できる環境でメイクアップや着替えを完結できます。

扉を開放、広々とした11.8帖の「プライベートスイート」としても利用も
2つの居室の引戸を開放することで、約11.8帖という都心では稀有な大空間が生まれます。
広々とした空間は、視覚的なストレスから解放し、深い安らぎをもたらします。
大きなベッドやパーソナルラウンジなど、家具配置の自由度も高まり、ハイグレードな暮らしを最大限にデザインできます。

リビング14帖の品格ある空間で、最高のリラックスを
広々とした約14帖のLDKは、仕事の緊張から完全に解き放たれる安らぎの中心地です。
明るいフローリングと開放的な空間は、視覚的なストレスを軽減し、質の高い休息をもたらします。


デザイン性の高いオープンキッチンは、生活感を抑えつつ、ゲストをもてなす際にも優雅な雰囲気を演出します。
仕事仲間やプライベートの友人を招いても、十分なスペースと洗練された内装が、あなたの高いステータスと細やかな配慮を証明します。



ゲストをもてなすスマートな「魅せるキッチン」で生活感ゼロ
対面式のオープンデザインで、リビング全体にゆとりをもたらします。
特筆すべきは、ビルトインの食洗機。
多忙な深夜の帰宅後でも、食器洗いの負担から解放され、自由な時間をしっかり確保できます。


豊富な引き出し収納と生活感を隠せる設計は、いつでも整頓された美しい空間を保ち、急な来客にもスマートに対応できます。
ゆとりのあるカウンタースペースは、食事の準備だけでなく、優雅なコーヒー・ティータイムにも最適です。

「美」を追求する、三面鏡付き独立洗面台
白を基調とした清潔感あふれるデザインは、気分良くメイクや身だしなみを整えるのに最適です。
慌ただしい出勤前の時間も、機能的な洗面台がサポートし、快適に準備ができます。

三面鏡の裏とカウンター下に豊富な収納スペースを確保。
多岐にわたるメイク用品、美容家電、アメニティを全て隠し、洗面空間を常にクリーンで美しい状態に保てます。
これは、美しさを追求するキャバ嬢さんにとって、集中して準備を行うための重要な要素です。

スマートなランドリー空間
独立洗面台、洗濯機置き場、バスルームが一直線に配置された機能的な動線です。
出勤前は、三面鏡の独立洗面台で身支度、帰宅後はすぐにバスルームで疲れを洗い流し、そのまま洗濯機へ。
無駄な動きがなく、時短ができ睡眠時間を最大限確保できます。

隠す収納が生活感をゼロに、モデルルームのようなサニタリーを維持。
洗剤、柔軟剤、タオルストック、掃除道具など、サニタリー周りの全ての生活用品を完全に隠せる大容量のクローズド収納です。
扉を閉めることで、雑多な生活感を一切見せず、独立洗面台と合わせた洗練された空間を維持できます。
大切なゲストを招く際にも、美意識の高いあなたの品格を保てます。

豊富な棚板で、リネン類やケア用品も効率的に整頓可能です。

心身をリセットする極上のプライベートスパ
ゆったりとした浴槽は、仕事で疲れた体を温め、全身をしっかりとリセットするのに最適です。
肌のケアや美容のための入浴時間を、誰にも邪魔されず、心ゆくまでお楽しみいただけます。
独立洗面台と直結する動線で、メイク落としから入浴、着替えまでがスムーズ。
最高の休息が、翌日の最高の笑顔とパフォーマンスを支えます。


雨の日も安心、自転車を大切に保管する専用スペース。
屋内の、広々とした駐輪場を確保しています。
外部からの視線や雨風を防げる屋内環境で、大切な自転車を安全かつ清潔に保管できます。

賃貸条件
| 賃料 | 450,000円 |
| 管理費 | 20,000円 |
| 敷金 | 0ヶ月 |
| 礼金 | 0ヶ月 |
| その他 | 仲介手数料無料 インターネット無料 |
間取り図

グランパセオ広尾の物件紹介をご覧頂きありがとうございます。
広尾エリアでは貴重な初期費用が抑えられる2LDKのお部屋です。
他のお部屋も間取りもございますので、詳細等をご希望の方は下記お問い合わせフォームよりお気軽にお問合せ下さい。
お客様の条件に合わせてのお部屋探しのご依頼もお待ちしております。
審査に強い不動産「お水の賃貸」に、お部屋探しはお任せ下さい。
動画で物件チェック
GRAN PASEO広尾(グランパセオ広尾)物件概情報
- 物件名
- GRAN PASEO広尾(グランパセオ広尾)
- 所在地
- 東京都渋谷区広尾3丁目12ー39
- アクセス
- JR山手線「恵比寿」駅 徒歩12分
東京メトロ日比谷線「恵比寿」駅 徒歩12分
東京メトロ銀座線「表参道」駅 徒歩17分 - 築年月
- 2025年2月

に物件探しを依頼する